仲町貸事務所
メニューを表示
借りたい
アパート・貸家
貸し店舗・事務所
駐車場・車庫
貸し土地
買いたい
土地
住宅
建物
チラシ
会社一覧
お問合せ
目次
戻る
Google地図で見る
即入居可能です!(^^)!
種別
貸事務所
名称
仲町貸事務所
賃料
7.7
万円
(管理費 0円)
敷金 / 礼金
140,000円 / 140,000円
所在地
むつ市仲町2-17
用途地域
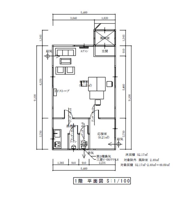
延べ床
-
坪単価
-
築年月
2010年01月(築15年)
構造/階数
/ 1階
設備
駐車場 5台
プロパンガス 公営水道
特記事項
駐車料2台まで無料、3台目から5,500円とする。
取引態様
貸主
データ更新日
2025/11/05
取り扱い不動産会社
(有)オーエムワン
(
会社情報
)
営業時間
:
午前9:00 ~ 午後5:00
定休日
:
土曜日 日曜日 祝日
電話番号
:
0175-23-1446
電話の際は「むつ市不動産ナビを見た」とお伝え下さい
メール
:
メール問い合わせへ
不動産会社からのお知らせ
どうぞ、お気軽にご相談ください
↑上へ戻る
アパート貸家
貸店舗事務所
駐車場車庫
貸し土地
土地
住宅
建物
チラシ
会社一覧
お問合せ
目次
Copyright(C)
むつ市不動産ナビ
All Rights Reserved.