大畑町中古物件
メニューを表示
借りたい
アパート・貸家
貸し店舗・事務所
駐車場・車庫
貸し土地
買いたい
土地
住宅
建物
チラシ
会社一覧
お問合せ
目次
戻る
Google地図で見る
価格見直しました!! (2026.1.8~)
1500万円(2025.11.10~)→1200万円
フルリノベの清潔感で、住み心地良好!!
【リノベーション内容】
・外壁張替(ゼオンサイディング)、木製玄関ドア、玄関タイル、トリプルガラスサッシ
・キッチン、浴室、洗面化粧台、トイレ
・寒冷地用エアコン2台、照明器具
・内装クロス全面、床材一部張替え
・壁付加断熱、床断熱補強
車庫2台完備で雪下ろし不要!!
リビング畳スペースでごろ寝もいいですね♪
種別
中古戸建
名称
大畑町中古物件
価格
1200
万円
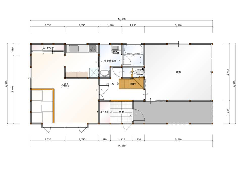
間取り
4LDK (141.87m
2
)
間取り詳細
所在地
むつ市大畑町正津川平290-3
学区
大畑 / 大畑
土地面積
330.60m
2
(約 100 坪)
道路位置
南側(市道)
築年月
2001年06月(築24年)
リフォーム
2025年06月
構造
木造亜鉛メッキ鋼板葺き
地目
宅地
用途地域
無指定
建蔽 / 容積
70% / 200%
ガス
水道
公営水道
駐車場
5台
特記事項
取引態様
仲介
データ更新日
2026/01/08
取り扱い不動産会社
(株) むつ不動産取引センター
(
会社情報
)
営業時間
:
平 日 9:00-12:00 13:00-17:30
土曜日 9:00-12:00 13:00-16:00
定休日
:
第一・第三土曜日・日曜・祝日
電話番号
:
0175-22-8080
電話の際は「むつ市不動産ナビを見た」とお伝え下さい
メール
:
メール問い合わせへ
不動産会社からのお知らせ
お部屋探し・売買・管理など、お気軽に
お問い合わせ
ください。
ご契約時は保証会社・借家人賠償責任火災保険等へのご加入をお願いいたします。
安心してご入居いただく為、玄関錠の交換を推奨しております。(交換費用目安:15,000円~/税抜)
公式HP
ではトレーラーハウス情報も掲載中♪
↑上へ戻る
アパート貸家
貸店舗事務所
駐車場車庫
貸し土地
土地
住宅
建物
チラシ
会社一覧
お問合せ
目次
Copyright(C)
むつ市不動産ナビ
All Rights Reserved.